Доступно

[Повтор] Проект 2х этажного каркасного дома 172м²

Тема в разделе "Строительство и ремонт", создана пользователем American_Camaro, 7 фев 2016.

Цена: 11 000р-97%
Взнос: 276р
100%

Основной список: 91 участников

Резервный список: 10 участников

Статус обсуждения:
Комментирование ограничено.
  1. 7 фев 2016
    #1
    American_Camaro
    American_Camaro ДолжникДолжник

    Складчина: [Повтор] Проект 2х этажного каркасного дома 172м²

    vneshnii_vid_proekt_kd-22_var2.jpg

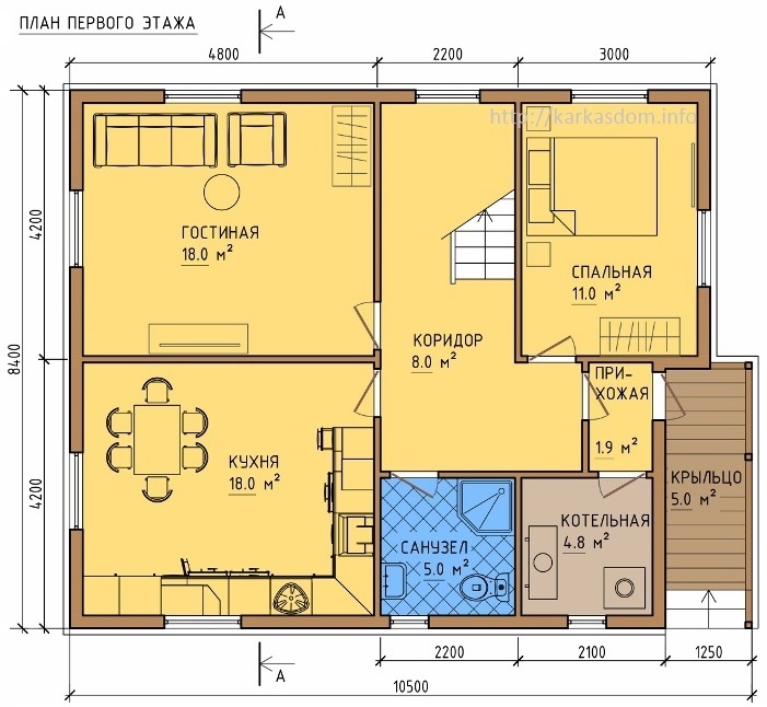
    Проект каркасного дома 8,4х10.5м - комфортный, большой, но недорогой дом для постоянного проживания. Фишкой данного проекта является крыльцо над которым при желании можно сделать огромный балкон.Отделка дома может быть изменена под ваши предпочтения, по проекту: наружная чистовая ОSB и внутренняя чистовая отделка ГКЛ входят в стоимость проекта. Также в цену проекта включён фундамент, утепление 150-200мм мин. ваты (возможно до 250мм), электропроводка и установочные изделия, автоматика водоснабжение и канализование с установленной сантехникой

    Первый этаж 86 м2 : Высота потолков 2,6м, Спальня 11м2, Гостиная 18м2, Кухня 18м2, с/у 5м2, Котельная 4,8м2, Прихожая 1,9м2, Крыльцо 5м2, высота в коньке 8м.

    Второй этаж 91м2 : Высота потолков 2,8м, Кабинет 10м2, Спальня 23,7м2, Спальня 17,8м2, Кладовая 3,7м2, с/у 5,6м2, Лоджия 10м2.

    Фото:
    razrez_proekt_kd-22.jpg
    2.jpg
    plan_2_etaze_proekt_kd-22.jpg

    Скачать описание
    Цена:
    11.000
    Продажник:

    Предыдущая складчина​
     
    Последнее редактирование модератором: 7 фев 2016
    5 пользователям это понравилось.
  2. Последние события

    1. skladchik.com
      Складчина доступна.
      22 авг 2022
    2. skladchik.com
      Gonsales хранитель складчины.
      22 авг 2022
    3. skladchik.com
      Складчина закрыта.
      22 авг 2022
    4. skladchik.com
      Складчина доступна.
      19 дек 2021

    Последние важные события

    1. skladchik.com
      Складчина доступна.
      22 авг 2022
    2. skladchik.com
      Gonsales хранитель складчины.
      22 авг 2022
    3. skladchik.com
      Складчина закрыта.
      22 авг 2022
    4. skladchik.com
      Складчина доступна.
      19 дек 2021
  3. Отзывы участников

    5/5,
    • 5/5,
      Работой организатора доволен
      Отличный проект, все необходимые чертежи, спецификации, инструкции,видео, фото. Еще хочется одноэтажный дом от этого же автора.
      28 фев 2017
      1 человеку нравится это.
  4. Обсуждение
  5. 7 мар 2016
    #2
    Tranzistor
    Tranzistor ДолжникДолжник
    Добрый день! Когда ориентировочно ожидается запуск складчины?
    Для тех кому действительно интересно думаю сумма приемлемая.
     
  6. 23 дек 2016
    #3
    kumva
    kumva ОргОрганизатор
    уважаемые складчики, вынужден спрыгнуть с орга.
    планирую быть в разъездах, поэтому, оплаты не смогу вовремя отмечать, и письмо с проектом не смогу получить на почте.
    с админом связался, но он пока не отвечает. а дальше не могу не стартовать сткладчину, могут быть проблемы из-за этого...
     
  7. 23 дек 2016
    #4
    zagadka1
    zagadka1 ЧКЧлен клуба
    Какая жалость! Я так надеялась на эту сборку!
     
  8. 23 дек 2016
    #5
    Spartakus
    Spartakus ЧКЧлен клуба
    Надеюсь по приезду ты вновь возьмешься за организацию?Было бы замечательно!
     
    2 пользователям это понравилось.
  9. 23 дек 2016
    #6
    Wi-Fi
    Wi-Fi ЧКЧлен клуба
    Может после праздников возьмётесь?
     
    2 пользователям это понравилось.
  10. 26 дек 2016
    #7
    Wi-Fi
    Wi-Fi ЧКЧлен клуба
    Ура, огр появился! Может приступим?! :)
     
    1 человеку нравится это.
  11. 26 дек 2016
    #8
    doctor2
    doctor2 ОргОрганизатор
    Планирую сбор на 3. 01. Если сейчас объявить, то прям на праздник получается. Сейчас пока порекламирую.
     
    6 пользователям это понравилось.
  12. 26 дек 2016
    #9
    Еленеа
    Еленеа ЧКЧлен клуба
    Ну прям бальзам на душу))))):)
     
    3 пользователям это понравилось.
Статус обсуждения:
Комментирование ограничено.