Открыто

Проект бани из бревна [Иван Бояринцев]

Тема в разделе "Строительство и ремонт", создана пользователем Сендера, 24 апр 2025.

Основной список: 6 участников

Резервный список: 1 участников

  1. 24 апр 2025
    #1
    Сендера
    Сендера МодерМодератор Команда форума
    1б.jpg
    2б.jpg 3б.jpg 4б.jpg 5б.jpg 6б.jpg 7б.jpg

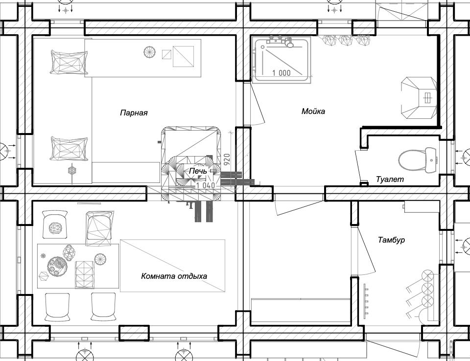
    Проект бани из бревна размером 6*8 по принципу "Живая баня" под печь "Жива" ПБ-3П4К, ПБ-3Л4К

    Внешняя отделка- Вагонка по обрешетке или открытые конструкции стен с пропиткой антигрибковыми составами, рекомендуется применять орнаменты, резные элементы для традиционного оформления фасада здания.
    Полы по которым перемещаются гости бани деревянные "Плавающие", т.е. установлены на лаги или обрешетку с увеличенным пространством под полом.

    Полы по грунты- бетонные, выполняются в каждом помещении согласно проекту для отвода влаги и отвода стекающей воды.
    Отведение -воды из пола по грунту осуществляется канализационными трубами диаметром
    110 мм с уклоном на 3см на погонный метр, в ту же систему подключается канализация здания, душевая, раковина, облив и унитаз.

    Стропильная система -деревянная двухскатная с холодным чердаком.
    Кровля- металлочерепица по обрешетке, водоотведение организованное в пластиковых или металлических лотках и трубах.
    Ограждающие конструкции окна и двери пластиковые или деревянные , при установке окон соблюдать указания в проекте.

    Здание бани спроектированно для строительства "Живой бани" по технологиям малоэтажного строительства, согласно СНИПам, с применением традиционных приемов Русского зодчества и адаптированно специалистами Академи Банного Дела на основе многолетнего опыта и приемственности специалистов и в Банном деле. Суть применения создания "Живой Бани", создание наиболее долговечной и комфортной среды для посещения бани гостями и специалистами банного дела.

    1. Установка индивидуальной каменной печи, которая работает как насос для принудительной вентиляции воздушных масс.
    2. Увеличение цокольной части здания- для создания подпольного пространства для устройства теплого пола и отвода избытков воды.
    3. Устройство сменного деревянного пола во влажных помещениях, для удобства обслуживания, чистки, и продления срока службы деревянных деталей пола.
    4. Увеличенная высота стен, для создания комфортной среды и качественной работы банщика, и максимально эффективного парового эффекта в помещении парилки.
    5. Установка шлюза для подачи дров, минуя дверные проемы, для сохранения теплового режима в помещении.
    6. Устройство завалинки для утепления цокольной части здания и сохранения долговечности конструкций в агрессивной среде перепадов температур и влажности.

    Проект включает в себя:
    1. Инженерный проект:
    - фундамент постройки;
    - крышу;
    - стены - бревно (рубка сруба прописывается визуально, но без размера брёвен. Брёвна берутся, по умолчанию, как морковки, то есть с одной стороны шире. Точное количество брёвен не указывается, т.к. это зависит от размера бревна, но в итоге нужно выйти на размер бани в проекте)
    - систему отопления;
    - систему подачи воздуха;
    - место под фундамент печи (печь на усмотрение заказчика: есть проекты для 3 видов печей - Лежебока, Неваляшка и Жива. Каждая имеет свои достоинства, первые две с чугунным ядром, последняя полностью кирпичная. Неваляшка без лежанки, Лежебока с лежанкой. Проекты печей приобретаются отдельно.
    - раскладка по узлам, по сочленениям, нет только точек прикручивания (шурупов и каких-то мелких элементов, типа уголков, анкеров и т.д., стоители сами догадаются, как прикрепить).
    2. Дизайн-проект - это внешний вид, внутренний вид, экскурсии по всей бане с уже расставленной мебелью.
    3. Приложение - спецификация, где прописывается какое колличество каких материалов предположительно будет потрачено. Соответственно спецификация может стать сметой, если дальше подставить к этим материалам цены по вашему региону.

    Проект приходит в виде PDF-файла по почте. И с этим файлом вы уже можете работать дальше, раздавая его по листам или полностью альбомом своим строителям.

    Цена 35000 руб
    Скрытая ссылка
     
    Последнее редактирование: 25 апр 2025
    1 человеку нравится это.
  2. Последние события

    1. iurcik123
      iurcik123 участвует в складчине.
      10 фев 2026
    2. Petr152
      Petr152 не участвует в складчине.
      1 фев 2026
    3. Korwus
      Korwus не участвует в складчине.
      17 июн 2025
    4. Курьянова
      Курьянова участвует в складчине.
      14 июн 2025

    Последние важные события

    1. skladchik.com
      Цена составляет 35 000р.
      24 апр 2025
    2. skladchik.com
      Цена составляет 51 000р.
      24 апр 2025