Доступно

[Проект] Chivas - комфортное жилье по супер выгодной цене [Domokea] [Виктор Мельник]

Тема в разделе "Строительство и ремонт", создана пользователем Ritterraden, 12 июн 2020.

Цена: 7 990р-72%
Взнос: 2 170р
81%

Основной список: 8 участников

Статус обсуждения:
Комментирование ограничено.
  1. 12 июн 2020
    #1
    Ritterraden
    Ritterraden ЧКЧлен клуба

    Складчина: [Проект] Chivas - комфортное жилье по супер выгодной цене [Domokea] [Виктор Мельник]

    1.jpg
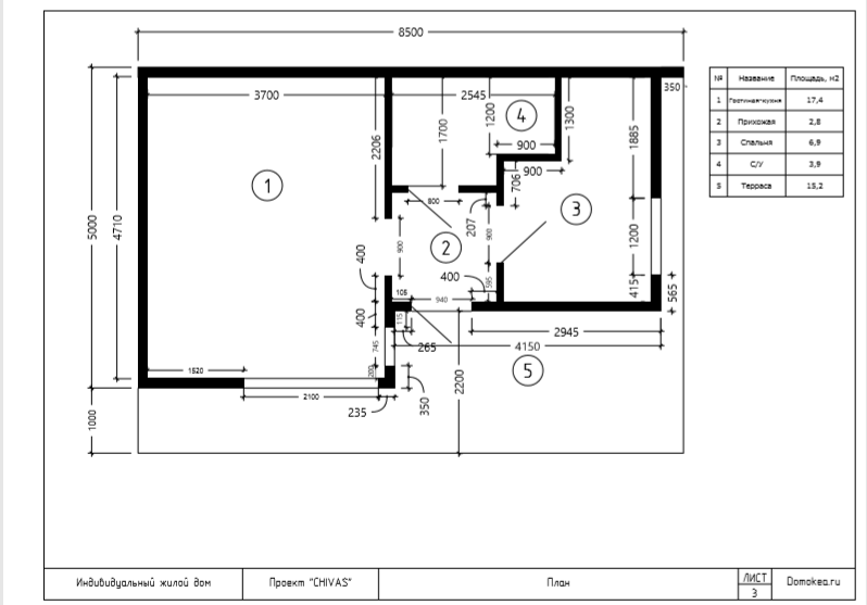
    Размеры 5х4=20м2+4,15х3,8=15,77м2, итого площадь дома 35,77м2, 4х1=4м2+2,2х4,15=9,13м2+0,35хх6=2,1, итого площадь террасы 15,23м2, высота задней стенки 2,25м, высота передней стенки 2,53м

    2.png 9.png

    Толщина утепления:
    пол 200мм
    кровля 200мм
    стены 150мм

    Проект содержит:
    1. КР(конструктивный раздел)- схемы всех конструктивов+ свайное поле(фундамент)
    2. 3d модель SketchUp
    3. расход материалов(смета)
    4. файл распиловки

    Стоимость на материалы составит 7тр-15тр( все зависит от выбранных материалов для отделки - внешней и внутренней), 280тр- 530тр на материалы соответственно.

    Данный проект спроектирован из сухой строганой доски сечением 145х45, 100х45 по наружним стенам, 100х50 по внутренним перегородкам.

    Дом подходит для постоянного проживания.

    Видео-обзор проекта:


    Скрытая ссылка

    3.jpg 4.jpg 5.jpg 6.jpg 7.jpg 1.jpg 8.jpg
     
    Последнее редактирование модератором: 15 июн 2020
    4 пользователям это понравилось.
  2. Последние события

    1. skladchik.com
      Складчина доступна.
      10 май 2024
    2. skladchik.com
      Хранитель хранитель складчины.
      10 май 2024
    3. skladchik.com
      Складчина закрыта.
      19 авг 2021
    4. skladchik.com
      Складчина доступна.
      14 окт 2020

    Последние важные события

    1. skladchik.com
      Складчина доступна.
      10 май 2024
    2. skladchik.com
      Хранитель хранитель складчины.
      10 май 2024
    3. skladchik.com
      Складчина закрыта.
      19 авг 2021
    4. skladchik.com
      Складчина доступна.
      14 окт 2020
Статус обсуждения:
Комментирование ограничено.