Открыто

Проект дома 64A("Кристалл" - Альфаплан) 179.7/ 85.07 м2 общая/ жилая

Тема в разделе "Строительство и ремонт", создана пользователем FlyOrDie, 23 июл 2016.

Основной список: 8 участников

Резервный список: 3 участников

  1. 23 июл 2016
    #1
    FlyOrDie
    FlyOrDie ДолжникДолжник

    Складчина: Проект дома 64A("Кристалл" - Альфаплан) 179.7/ 85.07 м2 общая/ жилая

    ф.png
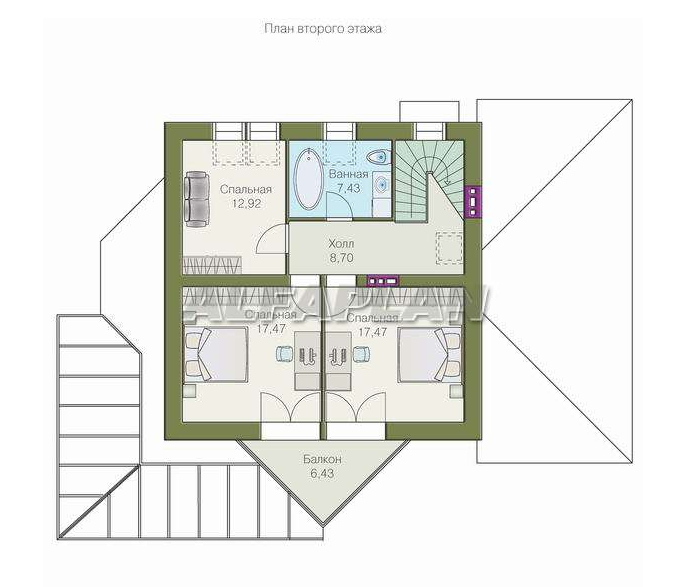
    Общая площадь дома - 179.70 м2
    Жилая площадь дома - 85.07 м2
    Площадь гаража-навеса - не включена в общую площадь

    Характеристики
    Тип фундамента монолитная ж/б плита 43.2 м3
    Тип наружных стен кирпич или газобетон Ytong (альтернативно) 74.4/73.4 м3
    Тип внутренних стен кирпич 9.2 м3
    Тип перекрытий монолитные ж/б над первым этажом и подшивка по стропилам над вторым
    Крыша деревянные стропила
    Тип кровли битумная черепица 326.4 м2
    Наружная отделка лицевой кирпич, штукатурка 193.4 м2
    Наружная отделка цоколя облицовочный камень
    Количество этажей 2
    Верхний этаж - мансардный 1
    Наличие встроенного гаража 0
    Наличие гаража навеса 1
    Габаритные размеры дома без крылец 15.2х13.3 м
    Высота дома от уровня пола первого этажа 10.10 м
    Высота 1-го этажа от пола до потолка 3.0 м
    Высота 2-го этажа от пола до потолка 2.85 м
    Мощность котла с бойлером горячей воды 50 кВт
    Расчетная электр. нагрузка с учетом электроплиты 14.56 кВт
    Утеплитель минеральная вата
    а.png
    б.png
    60 000 руб - это:
    Архитектурно-строительные чертежи (АС) 36000
    Внутренние инженерные системы (ИС) отопление, водопровод, канализация, электрооборудование 5000
    Паспорт проекта 3500
    ДОПОЛНИТЕЛЬНО:
    Вариант системы отопления с теплым полом при площади дома меньше 200м2 - 12000 руб,
    Типовой проект погреба 285Т (только для домов с фундаментом - монолитная ж/б плита) - 3 500 руб

    36000+5000+3500+12000+3500=60000 руб.
     
    Последнее редактирование модератором: 24 июл 2016
    4 пользователям это понравилось.
  2. Последние события

    1. rusak45
      rusak45 участвует в складчине.
      14 окт 2025
    2. Pyran1a
      Pyran1a не участвует в складчине.
      27 авг 2025
    3. zldar
      zldar не участвует в складчине.
      19 ноя 2024
    4. kelvinv
      kelvinv не участвует в складчине.
      1 мар 2023
  3. Обсуждение
  4. 30 июл 2016
    #2
    FlyOrDie
    FlyOrDie ДолжникДолжник
    Всем доброго времени суток! До какой цифры будем ждать снижения цены, чтобы мне примерно ориентироваться? Пишем ответы :)
     
  5. 30 июл 2016
    #3
    Кулибин Виталий
    Кулибин Виталий ЧКЧлен клуба
    Орга то нет.