Открыто

Проект дома Aframe с сауной [domokea]

Тема в разделе "Строительство и ремонт", создана пользователем Топикстартер, 6 апр 2022.

Основной список: 6 участников

Резервный список: 7 участников

  1. 6 апр 2022
    #1
    Топикстартер
    Топикстартер ЧКЧлен клуба
    Проект дома Aframe с сауной 7,8х8,5=98м2

    2021-11-14_16-16-07.jpg

    Размер всей застройки 7,8 х 8,5 =98м2

    Дом подходит для постоянного проживания.

    Стоимость данного проекта по материалам составит 20тр-25тр(с отделкой “под ключ” по внешней и внутренней отделке)= 1,9млн.р-2,4млн.р

    Проект содержит:

    1. КР(конструктивный раздел):

    – содержание

    – пояснительная записка

    – модель каркаса дома

    – план фундамента (плита)

    – Схема монтажа треугольных рам

    – Схема сборки Рама А

    – Схема сборки Рама Б

    – Схема сборки Рама В

    – Схема сборки Рама Г

    – Схема сборки Рама Д

    – Схема сборки Рама Е

    – Модель рам А, Б, В, Г, Д, Е

    – Схема установки ендовых

    – Модель установки рамы Ж

    – Схема сборки рама Ж

    – Схема установки колонн 2

    – Модель организации горизонтальной обрешётки

    – Модель организации вертикальной обрешётки

    – Схема монтажа стен 1-го этажа

    – Схема сборки стен 1.01-1.07

    – Узлы стен 1

    – Схема сборки межэтажного перекрытия

    – Спецификация пиломатериалов

    – Сводные данные

    2. ЭП(эскизный проект):

    – Содержание

    – План 1-го этажа

    – Обмерочный план 1-го этажа

    – Обмерочный план 2-го этажа

    – Общий вид 1-4

    – Фасады в осях

    – Разрез

    – Ведомость заполнения дверных и оконных блоков

    3. файл распиловки(196х46, 96х46, клееный брус 160х240, 160х160, 8-х140, доска 150х40, 100х40- обрешетка и контробрешетка кровли)

    4. 3д модель каркаса.bimx и эскизная модель.bimx

    Высота потолка 1-го этажа 2,545м, 2-го этажа

    2021-11-14_16-15-13-1.jpg
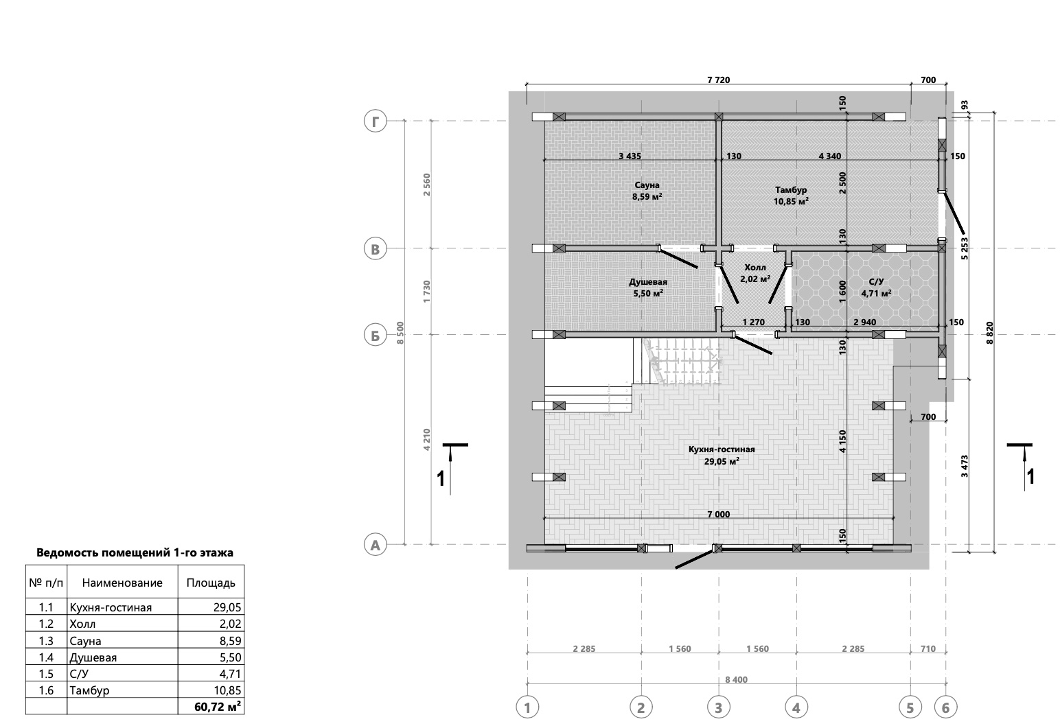
    Площади помещений:

    1 этаж:

    1. гостиная-кухня 29,05м2

    2. С/у 4,71м2

    3. Тамбур 10,85м2

    4. Душевая 5,5м2

    5. Сауна 8,59м2

    6. Холл 2,02м2

    итого 1-й этаж: 60,72м2


    2021-11-14_16-15-31-1.jpg
    2 этаж:

    1. Лофт 21,05м2 + второй свет

    Толщина утепления:

    пол – плита, межэтажное перекрытие 200мм

    наружные стены 250мм( они же кровля), внутренние перегородки 100мм

     
    3 пользователям это понравилось.
  2. Последние события

    1. Jegeta
      Jegeta участвует в складчине.
      6 окт 2025
    2. Vivorat
      Vivorat не участвует в складчине.
      30 июн 2025
    3. Vivorat
      Vivorat участвует в складчине.
      31 май 2025
    4. Fvelive
      Fvelive участвует в складчине.
      22 май 2025

    Последние важные события

    1. skladchik.com
      Нужен организатор складчины.
      2 янв 2023
    2. skladchik.com
      Maxim_123 организатор складчины.
      1 ноя 2022