Открыто

Проект дома ДК-2 [VILLADENA]

Тема в разделе "Строительство и ремонт", создана пользователем sasha8242, 2 мар 2021.

Основной список: 2 участников

Резервный список: 3 участников

  1. 2 мар 2021
    #1
    sasha8242
    sasha8242 ЧКЧлен клуба

    Складчина: Проект дома ДК-2 [VILLADENA]

    Дом мечты за 90 дней.
    Villadena- Это современный одноэтажный коттедж, построенный полностью из экологически чистых материалов.
    Это каркасный дом, на 98% состоящий из древесины.
    Дом имеет две уютные спальни, просторную кухню-гостиную, совмещенный сан-узел, финскую сауну, техническую комнату (бойлерную), гардеробную.
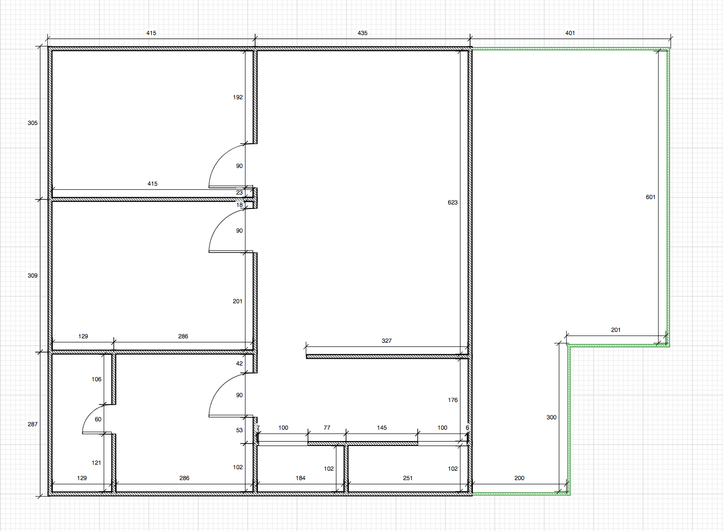
    Размеры дома: 9 х 8.5 м. терраса 4 х 6 + 3 х 2 м. Кухня-Гостинная 28м.кв. Комнаты по 13 кв.м. Прихожая 11 кв.м. Сан/узел 5 кв.м. Сауна 2.5 кв.м. Терраса 30 кв.м.
    full_aIOxqu6B.jpg full_FGGzBrkd.jpeg full_FRTcDdmn.jpg full_mxfPSxU5.jpg full_unQqYqE3.jpg full_uVet9l3W.jpg full_aIOxqu6B.jpg full_FGGzBrkd.jpeg full_FRTcDdmn.jpg full_mxfPSxU5.jpg full_unQqYqE3.jpg full_uVet9l3W.jpg

    full_J5W5Vq15.png

    Скрытая ссылка
     
    1 человеку нравится это.
  2. Последние события

    1. max_drey
      max_drey участвует в складчине.
      5 сен 2024
    2. t_sit
      t_sit не участвует в складчине.
      25 авг 2024
    3. дон-помперон
      дон-помперон не участвует в складчине.
      27 дек 2023
    4. skladchik.com
      В складчине участвует 5 человек(а).
      31 авг 2023