Открыто

Проект энергоэфективного, автономного дома из газосиликатных блоков [Повтор]

Тема в разделе "Строительство и ремонт", создана пользователем Aspen, 7 окт 2021.

Основной список: 4 участников

Резервный список: 1 участников

  1. 7 окт 2021
    #1
    Aspen
    Aspen ЧКЧлен клуба

    Складчина: Проект энергоэфективного, автономного дома из газосиликатных блоков [Повтор]

    Основные фишки данного проекта:
    - проект основан на русской печи, что в нынешних условиях дает уверенность и независимость в автономности проживания
    - проект построен с учетом максимальной теплоэффективности и уменьшения теплопотерь, что не сравнимо допустим с домами из дерева (экономия на отоплении), где тепло-потери выше
    - автор, занимаясь проектированием домов, сам живет в подобном доме
    - на ютюб канале автора показано строительство данного проекта с "0", то есть в итоге вы получаете не "сухой" проект "сделай сам", а проект с видео-инструкцией строительства этого дома с нуля по плейлисту автора на ютюбе см.ссылку ниже в описании
    - на мой взгляд площадь дома оптимальная для комфортного проживания
    - "второй свет", высокие потолки
    - грамотная планировка, без каких-либо корридоров и "потерянных площадей
    "

    - баня изначально запроектирована в самом доме
    - идеи отделки можно не выдумывать, а почерпнуть с плейлиста автора на ютюбе
    - автор сам обкатывает свои проекты на протяжении нескольких лет, с пониманием, что изменить, где улучшить, то есть это не какой то теоретический проект, а проверенный временем

    Описание проекта
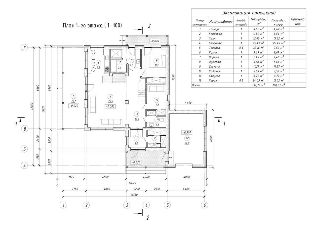
    Дома на печи №164 – 14,5х14,45 – АР
    Площадь застройки: 196 м²
    Общая площадь: 164 м²
    Площадь жилая: 103 м²

    Объемно-планировочное решение.
    1. Постройка имеет два этажа.
    2. На первом этаже запроектированы: терраса, гараж, тамбур, кладовая, холл, гостиная, кухня, парная, душевая, спальня, кабинет, санузел.
    3. На втором этаже запроектированы: две спальни, ванная, холл, антресоль.

    Конструктивное решение.
    1. Проектируемый объект представляет собой постройку из газосиликатных блоков.
    2. Пространственная жесткость и устойчивость постройки обеспечивается совместной работой наружных и внутренних несущих стен.
    3. Наружные стены одноквартирного жилого дома выполнены из газосиликатных блоков толщиной 300мм с утеплением каменной ватой толщиной 100мм. Внутренние несущие стены – из газосиликатных блоков толщиной 300мм, перегородки – из керамического кирпича 120мм, колонны из керамического кирпича 380х380мм.
    4. Дымоходы выкладывать из глиняного полнотелого одинарного кирпича марки 125/25-ГОСТ 8426- 75 на цементнопесчаном растворе марки М50.
    5. Перекрытия по деревянным балкам сечением 100×150мм.
    6. Крыша выполнена по деревянным стропильным ногам. В качестве утеплителя применены плиты минераловатные. Толщина утеплителя 400мм. В качестве кровельного материала используется металлочерепица.
    7. Фундамент монолитный.

    Наружная отделка
    1. Окна ПВХ трехкамерные.
    2. Наружные двери ПВХ двухкамерные
    3. Фасад выполнен цементно-песчаной штукатуркой.



    Продажник: Скрытая ссылка

    Плейлист автора на ютубе по строительству данного дома с "0":

    Скрытая ссылка

    Дополнительно к данному проекту рекомендую записаться на складчину по проекту печи для данного дома.
     

    Вложения:

    • 1-1.jpg
      1-1.jpg
      Размер файла:
      93.9 КБ
      Просмотров:
      264
    • 5-1.jpg
      5-1.jpg
      Размер файла:
      107.4 КБ
      Просмотров:
      257
    • 6.jpg
      6.jpg
      Размер файла:
      92.9 КБ
      Просмотров:
      221
    Последнее редактирование модератором: 7 окт 2021
    1 человеку нравится это.
  2. Последние события

    1. live91
      live91 не участвует в складчине.
      28 май 2026 в 10:03
    2. Petr152
      Petr152 не участвует в складчине.
      30 янв 2026
    3. Doctor123
      Doctor123 не участвует в складчине.
      18 ноя 2025
    4. Vivorat
      Vivorat не участвует в складчине.
      30 июн 2025

    Последние важные события

    1. skladchik.com
      Цена составляет 20 000р.
      18 дек 2021
  3. Обсуждение
  4. 24 дек 2021
    #2
    Aspen
    Aspen ЧКЧлен клуба
    У автора предновогодняя скидка проект дома + проект печи все за 9 900 руб. Осталось 7 дней - есть возможность успеть.