Открыто

Проект каркасной бани/дома 6х4

Тема в разделе "Строительство и ремонт", создана пользователем Топикстартер, 25 сен 2022.

Основной список: 3 участников

  1. 25 сен 2022
    #1
    Топикстартер
    Топикстартер ЧКЧлен клуба

    Складчина: Проект каркасной бани/дома 6х4

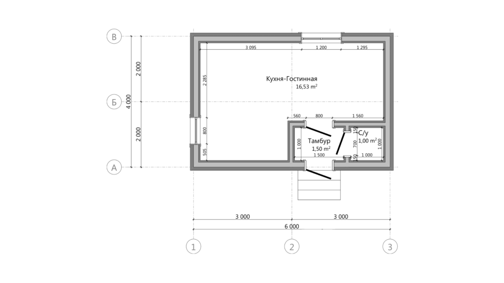
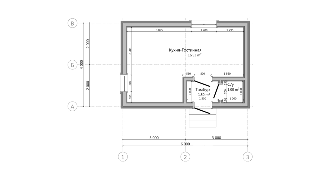
    Скорее не баня, а маленький домик с односкатной крышей

    фундамент: свайный

    стены из доски 50х150мм, пол и крыша 50х200мм

    высота потолка: 3.25-2.35м


    В версию проекта, кроме всего прочего входит 3D модель силового каркаса в формате bimx (что позволит собрать каркас самостоятельно при желании любому человеку! - )

    Продажник
    Скрытая ссылка
     

    Вложения:

    • 001.jpg
      001.jpg
      Размер файла:
      54 КБ
      Просмотров:
      211
    • 002.jpg
      002.jpg
      Размер файла:
      61.5 КБ
      Просмотров:
      213
    • 003.jpg
      003.jpg
      Размер файла:
      52.3 КБ
      Просмотров:
      219
    • 004.jpg
      004.jpg
      Размер файла:
      87.9 КБ
      Просмотров:
      200
    • 005.jpg
      005.jpg
      Размер файла:
      107.3 КБ
      Просмотров:
      177
  2. Последние события

    1. max_drey
      max_drey участвует в складчине.
      24 авг 2024
    2. nonamesk
      nonamesk не участвует в складчине.
      25 мар 2023
    3. max_drey
      max_drey не участвует в складчине.
      16 мар 2023
    4. Hrumchik
      Hrumchik участвует в складчине.
      18 фев 2023