Доступно

[Проект] Каркасный дом, бытовка для строительства своими руками

Тема в разделе "Строительство и ремонт", создана пользователем Юрийййййй, 25 июн 2019.

Цена: 6 500р-95%
Взнос: 300р
100%

Основной список: 41 участников

Резервный список: 2 участников

Статус обсуждения:
Комментирование ограничено.
  1. 25 июн 2019
    #1
    Юрийййййй
    Юрийййййй СкладчикСкладчик

    Складчина: [Проект] Каркасный дом, бытовка для строительства своими руками

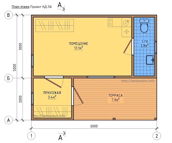
    Проект КД-56

    Цена хоз.блока/бытовки 5х6 30м2, крыша ондулин, стены ОСБ, окна, двери 99т.р.
    Цена хоз.блока/бытовки 5х6 30м2, крыша ондулин, стены ОСБ, окна, двери и фундамент 103т.р.
    Возможно утепление 100мм стены и 150мм пол/крыша базальтовой мин. ваты. + отделка вагонка, цена в смете к проекту.

    Цена проекта для самостоятельной сборки 6,5т.р

    1.jpg

    2.jpg

    3.jpg

    Подробнее: Скрытая ссылка
     
    Последнее редактирование модератором: 26 июн 2019
    3 пользователям это понравилось.
  2. Последние события

    1. skladchik.com
      Складчина доступна.
      21 ноя 2024
    2. skladchik.com
      Хранитель хранитель складчины.
      21 ноя 2024
    3. skladchik.com
      Складчина закрыта.
      7 ноя 2024
    4. SkladTS
      SkladTS оставил отзыв "Отлично".
      4 июл 2021

    Последние важные события

    1. skladchik.com
      Складчина доступна.
      21 ноя 2024
    2. skladchik.com
      Хранитель хранитель складчины.
      21 ноя 2024
    3. skladchik.com
      Складчина закрыта.
      7 ноя 2024
    4. skladchik.com
      Складчина доступна.
      3 июл 2021
  3. Отзывы участников

    5/5,
    • 5/5,
      Работой организатора доволен
      Смета от июня 2021г без инструментов выходит в 150к с утеплением и отделкой + вся необходимая информация по сборке инструкции, схемы, чертежи. По мне (не инженер и не строитель) всё есть для самостоятельной постройки. Теоретически пробежавшись по схемам, размеры домика можно увеличить, но нужно тогда самому скорректировать чертежи и смету под не стандартный размер, как мне кажется. Оргу спасибо!
      4 июл 2021
      6 пользователям это понравилось.
  4. Обсуждение
  5. 24 фев 2020
    #2
    goodboss
    goodboss ЧКЧлен клуба
    Товарищи, может возьмем складчину, цена как никак адекватная, тем более строительный сезон начинается
     
  6. 29 фев 2020
    #3
    Bogiv
    Bogiv ЧКЧлен клуба
    я за, а то протянем
     
    1 человеку нравится это.
  7. 1 мар 2020
    #4
    goodboss
    goodboss ЧКЧлен клуба
    осталось дело за малым, найти организатора, не желаете?
     
    1 человеку нравится это.
  8. 2 мар 2020
    #5
    Bogiv
    Bogiv ЧКЧлен клуба
    неее, я этим ни разу не занималась. Да и времени нет, ребенок маленький и работаю при этом
     
  9. 4 мар 2020
    #6
    Bogiv
    Bogiv ЧКЧлен клуба
    а вы не желаете организовать ? а то, видимо, не успеем к началу сезона:(:(
     
  10. 26 сен 2020
    #7
    Margeret10
    Margeret10 ОргОрганизатор
    Не могу найти ничего из СИП панелей, одни каркасники. Проекты из СИП есть?
     
    2 пользователям это понравилось.
  11. 26 янв 2021
    #8
    spqee
    spqee СкладчикСкладчик
    СИП слишком специфический материал. Обычно те, кто их производят, продают под собственные проекты.
     
    1 человеку нравится это.
  12. 17 июн 2021
    #9
    SkladTS
    SkladTS ЧКЧлен клуба
    давайте и я толкну тему, актуально
     
  13. 19 июн 2021
    #10
    SkladTS
    SkladTS ЧКЧлен клуба
    Изучил на сайте у них проекты подобного рода, выбор пал на этот как самый оптимальный вариант по размеру и бюджету + внешне очень симпатично смотрится!
     
  14. 20 июн 2021
    #11
    SkladTS
    SkladTS ЧКЧлен клуба
    Ни кто не против сборов? Ценник устоявшийся, все кому нужен думаю давно тут вписаны.

    Что касается проекта, если почитать комменты на сайте проекта, то увидите, что во многих других проектах, когда у людей появляются доп. вопросы по доп. плюшкам, то авторы часто рекомендую именно данный проект КД 56, как оптимальное решение.
     
    1 человеку нравится это.
  15. 20 июн 2021
    #12
    spqee
    spqee СкладчикСкладчик
    Ура, давно жду.
     
  16. 30 июн 2021
    #13
    Мед8едь
    Мед8едь ДолжникДолжник
    Господа-)
    чуть чуть и пойдет ЖаРа-)
     
Статус обсуждения:
Комментирование ограничено.