Доступно

Проект одноэтажного дома- бани 9,55х6,291 с жилой площадью 34м2 [Domokea] [Виктор Мельник]

Тема в разделе "Строительство и ремонт", создана пользователем Alexx21, 5 дек 2024.

Цена: 7 000р-92%
Взнос: 500р
100%

Основной список: 10 участников

Резервный список: 6 участников

Статус обсуждения:
Комментирование ограничено.
  1. 5 дек 2024
    #1
    Alexx21
    Alexx21 СкладчикСкладчик

    Складчина: Проект одноэтажного дома- бани 9,55х6,291 с жилой площадью 34м2 [Domokea] [Виктор Мельник]

    2024-12-08_010654.png

    Размер всей застройки 9,55 х 6,29
    Стоимость данного проекта по материалам составит от 25тр/м2(с отделкой “под ключ” по внешней и внутренней отделке) от 950тр

    2022-10-03_09-24-43-1.jpg 2022-10-03_09-32-13.jpg WhatsApp-Image-2022-05-18-at-08.19.18.jpeg WhatsApp-Image-2022-05-18-at-08.19.18-1.jpeg WhatsApp-Image-2022-05-18-at-08.19.19.jpeg WhatsApp-Image-2022-05-18-at-08.19.19-1.jpeg Снимок экрана 2024-12-05 102234.png

    Проект содержит:
    1. КР(конструктивный раздел):
    – Ведомость чертежей
    – Пояснительная записка
    – Модель дома и каркаса
    – План фундамента – винтовые сваи 108 диаметр 16шт
    – Схема и модель обвязки свай из бруса 200х150
    – Узлы обвязки свай
    – Схема и модель цокольного перекрытия
    – Узлы цокольного перекрытия
    – Схема расположения стен 1-го этажа
    – Модель стен 1-го этажа
    – Сборка стены 1.01-1.12
    – Схема монтажа второй верхней обвязки стен 1-го этажа
    – Узлы стен и опорных конструкций 1-го этажа
    – План кровли, угол ската 15 градусов
    – Схема и модель опорных и фасадных конструкций стропильной системы
    – Схема и модель расположения стропил
    – Схема запилов
    – Разрез 4-4
    – Спецификация на пиломатериалы силового каркаса
    – Сводные данные

    2. ЭП(эскизный проект):
    – Ведомость чертежей, ТЭП
    – План 1-го этажа+ план обмерочный
    – План кровли 15 градусов
    – Фасады в осях
    – Разрезы 1-1, 2-2 + 3д виды и пироги конструктивов
    – Общий вид 1-4
    – Ведомость оконных и дверных проемов

    3. Файл распиловки (95х45, 145х45, 195х45, 200х150) итого вам потребуется на каркас 8,4м3 сухого строганного пиломатериала
    обрешетка по стенам и кровле, контрутепление стен (брусок 50х50) – 2м3
    обрешетка кровли (доска 100х25) – 1,5м3
    В нашей базе более 300 готовых проектов каркасных домов разной площадью, планировкой и внешним видом.
    Поможем спроектировать дом вашей мечты!
    Стоимость индивидуального проектирования 1000р/м2(состав проекта- КР(конструктивный раздел)+ фундамент- винтовые сваи, ЭП(эскизный проект), 3д модель, файлы распиловки на каркас

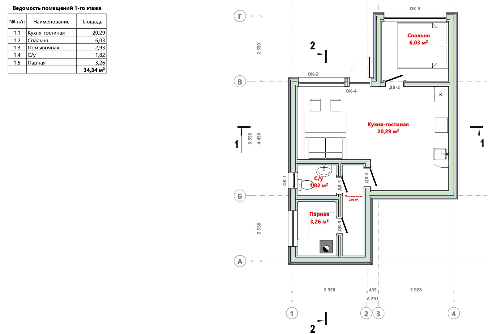
    Площади помещений:
    1 этаж:
    1. Помывочная – 2,93м2
    2. Кухня-гостиная – 20,29м2
    3. СУ – 1,82м2
    4. Парная – 3,26м2
    5. Спальня – 6,03м2
    итого 34,34м2

    Высота боковой стены внутри дома 2,5м, высота в коньке – 3,287м
    угол наклона кровли 15 градусов.

    Толщина утепления:
    пол 200мм,
    наружные стены 150мм + 50мм перехлестное утепление = 200мм, внутренние перегородки 100мм
    кровля 200мм

    Цена: 7000р.
    Скрытая ссылка
     
    Последнее редактирование модератором: 7 дек 2024
    8 пользователям это понравилось.
  2. Последние события

    1. skladchik.com
      Складчина доступна.
      3 мар 2025
    2. bagadur
      bagadur участвует в складчине.
      2 мар 2025
    3. Каменщик
      Каменщик участвует в складчине.
      1 мар 2025
    4. Каменщик
      Каменщик не участвует в складчине.
      28 фев 2025

    Последние важные события

    1. skladchik.com
      Складчина доступна.
      3 мар 2025
    2. skladchik.com
      Взнос в складчине составляет 500р.
      25 фев 2025
    3. skladchik.com
      Складчина активна.
      25 фев 2025
    4. skladchik.com
      Сбор взносов начинается 25.02.2025.
      23 фев 2025
  3. Обсуждение
  4. 10 дек 2024
    #2
    Alexx21
    Alexx21 СкладчикСкладчик
    АКЦИЯ НА ПРОЕКТ ДЕЙСТВУЕТ !!!! ДО 31 ДЕКАБРЯ !!!!
     
    1 человеку нравится это.
  5. 9 янв 2025
    #3
    Alexx21
    Alexx21 СкладчикСкладчик
    Проект выкуплен, ждем дальнейших действий от гаранта :)
     
    1 человеку нравится это.
  6. 13 янв 2025
    #4
    AlexNev
    AlexNev ЧКЧлен клуба
    Вообще, какой-то странный проект бани. Спальня есть, а душа в с/у нет. Душ только в помывочной - очень ограниченное использование бани. Только для использования а-ля "семейная пара без детей".
     
  7. 14 янв 2025
    #5
    Alexx21
    Alexx21 СкладчикСкладчик
    Не всем нужна парная, за место нее можно сделать полноценный санузел, а заместо c/у сделать кладовую ( или еще что-то). В целом внутренние перегородки можно менять они не являются силовым каркасом
     
    1 человеку нравится это.
Статус обсуждения:
Комментирование ограничено.